New Construction of a Fire Station

Provision of a Fire Station is necessary for utilization of the new air traffic areas in the northwest for compliance with the required response time in case of an accident as per ICAO Airport Services Manual Part 1.

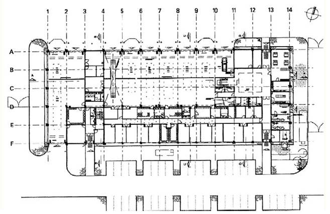
The Fire Station serves the aircraft fire protection and is laid-out for 36 employees working in shifts. Required open areas and hardstands are arranged at the building. An exercise area is attached east of Fire Station IV, which accommodates various mobile exercise equipment.

The partially two-storey Fire Station building, without basement, has the following outer dimensions and/or basic data:

Building length: 81,80 m

Building width: 31,85 m

Building height: 3,50 m, single-storey, 7,05 m, two-storey

Gross floor area – Level 1: approx. 2.615 m2

Gross floor area – Level 2: approx. 2.070 m2

Gross cubic content: approx. 17.750 m3

Disciplines

  • Buildings & Architecture

Companies

Dorsch Engineers GmbH

Client

Fraport AG

Duration

From 2002 to 2003

Location

Frankfurt/Main Airport , Germany

Project Activities

  • Determination of Basics
  • Preliminary Design
  • Concept Design
  • Approval Design

Contact

Companies